︎
Yuchen Wang
Architecture
A Brutal Cut
Brutalist Studies
The Orthogonal and Not
A House for IchthyosisPatients
Big Dumb Building
Playing Against Type
The Diptych
Elements of Space
Advanced Project Delivery
AS Design Development
Visual
Study
The X
Multiples
Letter Form
The Trajectory
Doraemon Chair
Kaws and Friends
Competition
The Angel
A Picture at An Exhibition
An Harmonious Sound
The Ring Bookstore
Educated Youth Building
ADU - LA
Covid -19
Stay at Home
CV
Contact
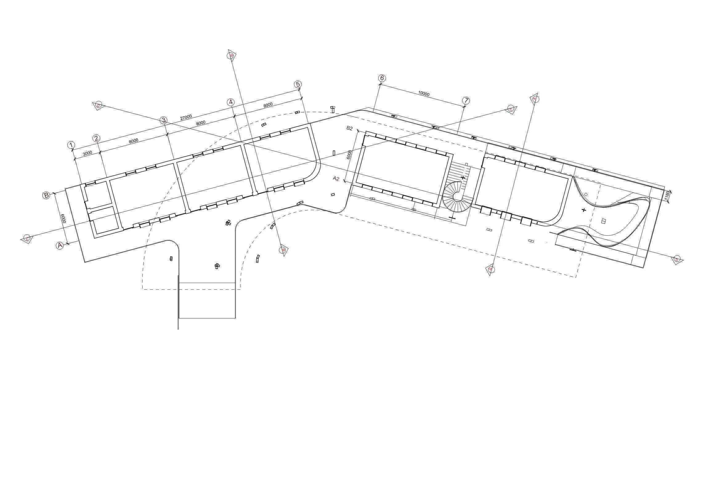
Competition
Educated Youth Building
K-12, Hunan, China
Collaboration With: Wenzhi Zhen, Long Pan, Pengju Hou, Chenming Jiang
Summer 2022